Skyline | flexible Büroflächen direkt an der U-Bahn
1190 Wien
Immobiliendetails
Das Geschäftshaus „Skyline Offices Wien“ in der Heiligenstädter Straße 31 im 19. Gemeindebezirk Döbling, befindet sich in einer der bevorzugten Wohnlagen Wiens. Die aus verkehrstechnischer Sicht hervorragende Lage am Schnittpunkt Döblinger Gürtel und Heiligenstädter Straße markiert den Übergang von einer Wohngegend zu einem sich entwickelnden Universitäts- und Verwaltungszentrum.
Die U-Bahn-Station Spittelau, und damit die beiden wichtigen Linien U4 und U6, sind durch den sogenannten Skywalk witterungsgeschützt mit dem Gebäude verbunden. Darüber hinaus besteht eine Anbindung an die S-Bahn, Regionalzüge sowie an die Straßenbahnlinien 37, 38 und D.
Der Individualverkehr gelangt von den Skyline Offices über den Handelskai in wenigen Minuten ins Stadtzentrum oder zur Donauuferautobahn sowie zur A4 und über den Gürtel an das übergeordnete Straßennetz in Richtung Süd- und Westautobahn.
Das im Jahr 2008 errichtete Geschäftshaus „Skyline Offices Wien“ hat eine Gesamtmietfläche von 15.774 Quadratmeter, die sich auf drei Bauteile aufteilt, wovon 12.771 Quadratmeter auf Büroflächen und der Rest auf Gastronomie- sowie Fitnessflächen entfallen. Unter dem Geschäftsgebäude finden in einer dreigeschossigen Tiefgarage 265 PKWs Platz.
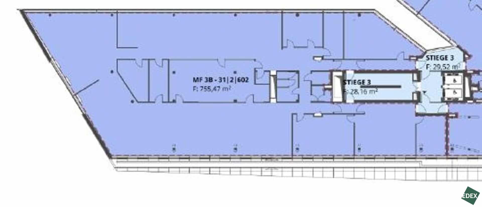
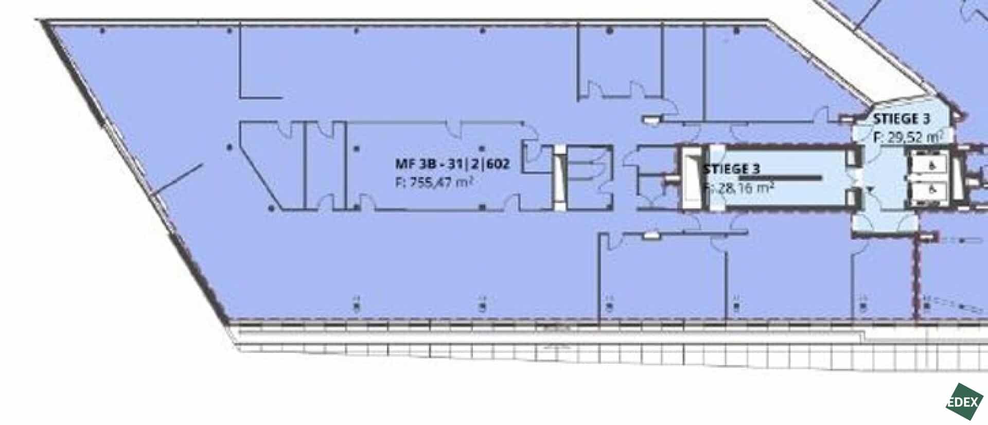
Die Flächen können beliebig auf die Wünsche des Mieters angepasst werden.
Ausstattung
- 3 Bauteile; 8 Ober- und 3 Untergeschosse
- Doppelboden mit Bodentanks
- Fan-Coil-Kühlung
- Flexibel gestaltbare Flächen
- Gipskartonständerwände
- Außen und innenliegender Sonnenschutz
- Gastronomie- und Fitnessflächen
*Alle Preise verstehen sich zuzüglich der gesetzlichen Mehrwertsteuer.
Disclaimer
Die in diesem Exposé enthaltenen Bilder dienen der Veranschaulichung und können teilweise computergenerierte Visualisierungen (Renderings) beinhalten. Diese Darstellungen sollen einen Eindruck von der möglichen Gestaltung der Immobilie vermitteln, stellen jedoch keine verbindliche Beschaffenheitsangabe dar. Die abgebildeten Möbel und Einrichtungsgegenstände dienen ausschließlich der Illustration und sind nicht Bestandteil des Kauf- oder Mietgegenstandes.
-
755 m2 Fläche -
Gute Infrastruktur
Objektdaten
- Objektnummer
- 22511/7
- Objekt
- Büro / Praxis
- Art
- Miete
- Nutzfläche
- 755 m2
- monatliche Miete (Netto)
- € 12.457,50
- Betriebskosten (Netto)
- € 3.397,50
- Gesamtmiete
- € 15.855,00
Lage der immobilie
- Festnetz +43 1 363010311
- Mobil +436643924248
- E-Mail h.anderlik@edeximmo.at
Gleich informieren und Termin vereinbaren
"*" indicates required fields