Modernes Arbeiten in 1030 | LANDMARX
1030 Wien,Landstraße
Immobiliendetails
Objektbeschreibung
Landmarx ist mittendrin und doch ganz individuell. Als eigenständiger Gebäudeteil des T-Centers hat es einen eigenen Eingang und profitiert von der vorhandenen Struktur – es gibt etwa ein Fitnessstudio im Gebäudekomplex. Die Menschen, die bereits hier arbeiten, sorgen für eine belebte Atmosphäre und machen Landmarx ideal für Unternehmen, die Anbindung und ein repräsentatives Büro suchen.
- Hohe Flexibilität in der Gestaltung
- Büroflächen ab 400 m2
- Pro Geschoß bis zu 2.500 m2
- 6 Obergeschosse
- 2 Untergeschosse mit öffentlicher Garage und Besucher-Parkplätzen, sowie E-Ladestationen
- Gewerbefläche samt Umkleidekabinen und Duschen
Ein Büro in St. Marx bedeutet Nähe – zum Zentrum genauso wie zu außen gelegenen Bezirken. Nur 20 Minuten sind es mit den Öffis in die Wiener Innenstadt oder zum Hauptbahnhof Wien. Durch die vielen Unternehmen, Universitäten und anderen Ausbildungsstätten, die sich hier angesiedelt haben, ist die Infrastruktur optimal ausgebaut: In unmittelbarer Umgebung gibt es viele Supermärkte und Lokale für einen schnellen Mittagssnack oder ein Arbeitsessen. Nur 650 Meter entfernt ist die Landstraßer Hauptstraße – hier findet man alles für den täglichen Bedarf. Und abends Unterhaltung, etwa in der Marx Halle und im Globe. Hier gibt es Kunst, Kabarett und Events – bald noch viel mehr davon: Denn in St. Marx entsteht die neue Stadthalle Wien
Verkehrsanbindung & Infrastruktur
Die öffentliche Anbindung ist durch die schräg vor dem Gebäude liegende S-Bahn-Station St. Marx (S7 Flughafen-Schnellbahn) sowohl ins Zentrum (Wien Mitte) wie auch zum Flughafen sehr gut. Darüber hinaus ermöglichen Straßenbahnlinien (18, 71) und Autobuslinien (74A, 80A) eine direkte Verbindung mit der Wiener Innenstadt.
Supermärkte, zahlreiche gute Restaurants und Cafés können bequem zu Fuß erreicht werden.
* Alle Preise verstehen sich zuzüglich der gesetzlichen Umsatzsteuer.
-
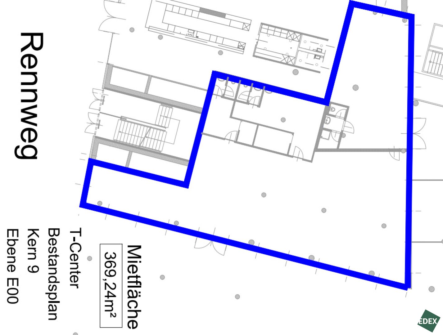
369,24 m2 Fläche -
Gute Infrastruktur
Objektdaten
- Objektnummer
- 20188/19
- Objekt
- Einzelhandel
- Art
- Miete
- Nutzfläche
- 369,24 m2
- monatliche Miete (Netto)
- € 5.353,98
- Betriebskosten (Netto)
- € 1.735,43
- Gesamtmiete
- € 7.089,41
Lage der immobilie
- Festnetz +43 1 363010311
- Mobil +436643924248
- E-Mail h.anderlik@edeximmo.at
Gleich informieren und Termin vereinbaren
"*" indicates required fields