Direkt zum Inhalt wechseln

ERSTBEZUG | Effiziente 3-Zimmer-Wohnung mit Terrasse

1230 Wien

Immobiliendetails

Khekgasse | 1230 Wien

Highlights

  • Erstbezugswohnungen mit effizienten Grundrissen – sofort beziehbar
  • 1-4 Zimmer-Wohnungen zum Teil mit Balkon, Terrasse oder Eigengarten
  • Niedrigenergiehaus mit Luftwärmepumpe und Photovoltaik-Anlage
  • Schöne Echtholz-Parkettfußböden mit Fußbodenheizung
  • Smart-Home-System für die Zugangskontrolle
  • attraktive Renditen für Anleger und Investoren

Willkommen im KHEK im 23. Wiener Gemeindebezirk, einem Wohnbauprojekt, das sich durch Qualität, Energieeffizienz und hochwertige Ausstattung auszeichnet und Anlegern attraktive Investitionsmöglichkeiten bietet.

Alle 44 Eigentumswohnungen verfügen über äußerst effiziente Grundrisse sowie teilweise über Balkon, Terrasse oder Eigengarten, die Nutzflächen der Wohnungen liegen zwischen 32 m² und 91 m². Moderne, elegante Bäder und hochwertige Parkettböden schaffen eine zeitgemäße Wohnatmosphäre. Eine Wärmepumpe sowie eine Photovoltaik-Anlage mit einer Leistung von mindestens ca. 3,46 kWp sorgen für eine umweltschonende Energieversorgung. Durch Einsatz eines Smart-Home-Systems, können Haustüren über das Smartphone aufgesperrt oder Informationen zum Gebäude von unterwegs abgerufen werden. In der Garage stehen 21 Garagenplätze zur Verfügung, E-Ladestationen können nachgerüstet werden.

Jeder Wohnung ist ein eigenes Kellerabteil zugeordnet, das Haus verfügt über einen Fahrrad- und Kinderwagenraum, sowie über einen Personenlift. Ein Gemeinschaftsgarten und ein Kinderspielplatz bietet zusätzlichen Grünraum für alle Bewohnerinnen und Bewohner. Die Lage im Grünen zwischen Perchtoldsdorfer Heide, dem Liesingbach und dem EKZ Riverside beim Liesinger Platz verbindet Erholung und Lebensqualität.

Auf Grund der tollen Lage und der funktionalen Raumaufteilung eignen sich die Wohnungen sowohl als Endnutzerwohnung sowie auch als Vorsorgewohnung – somit stehen Ihnen hier beide Erwerbsvarianten zur Verfügung.

Die Wohnungen können gerne jederzeit besichtigt werden. Wir freuen uns auf Sie!

Disclaimer

Die in diesem Exposé enthaltenen Bilder dienen der Veranschaulichung und können teilweise computergenerierte Visualisierungen (Renderings) beinhalten. Diese Darstellungen sollen einen Eindruck von der möglichen Gestaltung der Immobilie vermitteln, stellen jedoch keine verbindliche Beschaffenheitsangabe dar. Die abgebildeten Möbel und Einrichtungsgegenstände dienen ausschließlich der Illustration und sind nicht Bestandteil des Kauf- oder Mietgegenstandes.

Die Wohnung

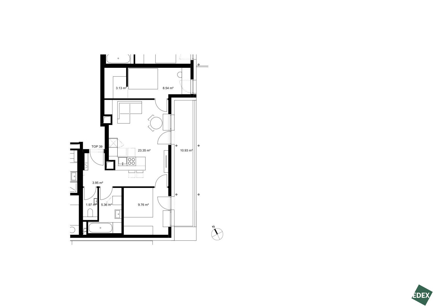
Diese 3-Zimmer-Wohnung im 4. Stock mit ca. 56,06 m² verfügt über einen Vorraum, ein Wohnzimmer mit Anschlüssen für eine Wohnküche, 2 Schlafzimmer, ein Bad mit Badewanne und Waschmaschinenanschluss sowie ein separates WC. Highlight ist die ca. 9,52 m² große Terrasse, die vom Wohnraum und von einem Schlafraum begehbar ist.

Die Wohnräume präsentieren sich mit schönem Parkett, während das Badezimmer mit zeitlos elegantem Feinsteinzeug ausgestattet ist. Die Beheizung erfolgt durch eine effiziente Zentralheizung in Verbindung mit einer Fußbodenheizung. Dreifach verglaste Fenster sorgen für optimale Isolierung. Ein zusätzliches Kellerabteil bietet praktischen Stauraum, im Haus befindet sich ein Abstellraum für Kinderwagen und Fahrräder.

 

Bauart und Ausstattung

  • Niedrigenergiehaus, HWB 24,30 kWh/m².a; fGEE = 0,73
  • Beheizung über Luftwärmepumpe in Kombination mit Photovoltaik-Anlage ( mindestens 3,46 kWp)
  • Fußbodenheizung 
  • Smart-Home-System
  • Hochwertige Echtholz-Parkettfußböden mit Schweizerleiste
  • Feinsteinzeugfliesen
  • außenliegender Sonnenschutz
  • RC-3-Eingangstüren
  • Weiße Innentüren mit Stahlzargen
  • Handwaschbecken in Toiletten
  • SAT-Anlage 
  • Glasfaserinternet 
  • Einlagerungsräume im Keller
  • Fahrrad- und Kinderwagenabstellraum

 

Wohnungen zum Verkauf in der Liegenschaft

In dem Haus stehen noch folgende Wohnungen zum Verkauf (Exposés auf Anfrage): Der Kaufpreis als Anlegerwohnung zwecks Vermietung versteht sich zuzüglich 20 % Ust. 

Erdgeschoß/1 OG:

  • TOP 3: ca. 58,62 m² 2,5-Zimmer-Maisonette-Wohnung mit 17,08 m² Garten
    Preis Anleger netto: EUR 356.200,-
    Preis Eigennutzer: EUR 390.000,-: 
     
  • TOP 10: ca. 59,43 m² 3-Zimmer-Maisonette-Wohnung mit 36,46 m² Garten
    Preis Anleger netto: EUR 410.970,-
    Preis Eigennutzer: EUR 450.000,-
     
  • TOP 4: ca. 72,74 m² 3-Zimmer-Wohnung mit 5,81 m² Balkon 
    Preis Anleger netto: EUR 384.000,-
    Preis Eigennutzer: EUR 449.410,- 
     
  • TOP 6: ca. 42,16 m² 2-Zimmer-Wohnung 
    Preis Anleger netto: EUR 219.200,-
    Preis Eigennutzer: EUR 256.806,,- 
     
  • TOP 7: ca. 46,24 m² 2-Zimmer-Wohnung (derzeit vermietet)
    Preis Anleger netto: EUR 253.980,-
    Preis Eigennutzer: EUR 297.577,- 
     
  • TOP 8: ca. 42,16 m² 2-Zimmer-Wohnung (derzeit vermietet)
    Preis Anleger netto: EUR 225.200,-
    Preis Eigennutzer: EUR 264.006,- 
     
  • TOP 9: ca. 42,18 m² 2-Zimmer-Wohnung 
    Preis Anleger netto: EUR 219.200,-
    Preis Eigennutzer: EUR 256.806,- 

2. Obergeschoss:

  • TOP 14: ca. 72,74 m² 3-Zimmer-Wohnung mit 5,81 m² Balkon
    Preis Anleger netto: EUR 399.900,-
    Preis Eigennutzer: EUR 468.533,-

 

  • TOP 20: ca. ca. 34,41 m² 1,5-Zimmer-Wohnung mit 5,81 m² Balkon 
    Preis Anleger netto: EUR 215.000,-
    Preis Eigennutzer: EUR 251.456,-
     
  • TOP 21: ca. ca. 33.05 m² 1,5-Zimmer-Wohnung mit 5,81 m² Balkon (derzeit vermietet)
    Preis Anleger netto: EUR 216.100,-
    Preis Eigennutzer: EUR 253.306,-

3. Obergeschoss:

  • TOP 24: ca. 72,74 m² 3-Zimmer-Wohnung mit 5,81 m² Balkon
    Preis Anleger netto: EUR 413.700,-
    Preis Eigennutzer: EUR 484.689,-

4. Obergeschoss:

  • TOP 34: ca. 72,74 m² 3-Zimmer-Wohnung mit 5,81 m² Balkon
    Preis Anleger netto: EUR 434.400,-
    Preis Eigennutzer: EUR 508.923,-
     
  • TOP 36: ca. 39,52 m² 2-Zimmer-Wohnung mit 16,73 m² Terrasse
    Preis Anleger netto: EUR 310.000,-
    Preis Eigennutzer: EUR 363.158,-
     
  • TOP 37: ca. 37,94 m² 2-Zimmer-Wohnung mit 13,51 m² Terrasse
    Preis Anleger netto: EUR 274.200,-
    Preis Eigennutzer: EUR 321.213,-
     
  • TOP 38: ca. 43,75 m² 2-Zimmer-Wohnung mit 12,93 m² Terrasse
    Preis Anleger netto: EUR 310.000,-
    Preis Eigennutzer: EUR 363.158,-
     
  • TOP 39: ca. 56,06 m² 3-Zimmer-Wohnung mit 9,52 m² Balkon
    Preis Anleger netto: EUR 364.400,-
    Preis Eigennutzer: EUR 426.940,-

5. Obergeschoss / 1. Dachgeschoß:

  • TOP 41: ca. 61,45 m² 3-Zimmer-Wohnung mit 11,56 m² Terrasse
    Preis Anleger netto: EUR 405.000,-
    Preis Eigennutzer: EUR 440.072,-
     
  • TOP 42: ca. 73,36 m² 3-Zimmer-Wohnung mit 15,27 m² Terrasse
    Preis Anleger netto: EUR 493.200,-
    Preis Eigennutzer: EUR 540.000,-
     
  • TOP 43: ca. 51,88 m² 2-Zimmer-Wohnung mit 18,05 m² Terrasse
    Preis Anleger netto: EUR 359.900,-
    Preis Eigennutzer: EUR 399.000,-
     
  • TOP 44: ca. 81,84 m² 3-Zimmer-Wohnung mit 39,15 m² Terrasse
    Preis Anleger netto: EUR 593.700,-
    Preis Eigennutzer: EUR 650.000,-

Der Vermittler ist als Doppelmakler tätig.

  • 9 Freifläche
    9 m2 Freifläche
  • 56,06 Fläche
    56,06 m2 Fläche
  • gute Infrastruktur
    Gute Infrastruktur
  • 3 Zimmer
    3 Zimmer

Objektdaten

Objektnummer
25706
Objekt
Wohnung
Art
Kauf
Wohnfläche
56,06 m2
Zimmer
3
Kaufpreis
€ 364.400,00
Betriebskosten (Netto)
€ 0,00
Gesamtbelastung
€ 0,00
Provision
3% des Kaufpreises zzgl. 20% USt.

Lage der immobilie

Mag. Michaela Sauer
Beraterin

Gleich informieren und Termin vereinbaren

"*" indicates required fields

This field is hidden when viewing the form
This field is hidden when viewing the form
Anschrift
DSGVO Cookie Consent mit Real Cookie Banner